CPI

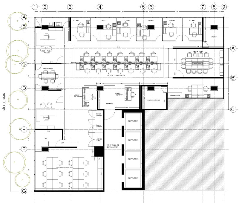
El proyecto consistió en desarrollar unas oficinas en un edificio de la Colonia Cuauhtémoc, en una zona de gran densidad corporativa de la Ciudad de México.

El objetivo era lograr espacios con un carácter sobrio y moderno a la vez, muy abiertos y transparentes, permitiendo el contacto visual tanto con el interior como con el exterior, ya que al estar ubicados en un tercer piso, gozan de vistas privilegiadas de las copas de los árboles.

Los acabados en pisos combinan el uso de madera y concreto para separar las circulaciones de las estaciones de trabajo. Los espacios comunes se enfatizaron dentro de cubos de madera, como la sala de juntas y la recepción. Los plafones se eliminaron para ganar altura, dejando a la vista las instalaciones del proyecto.

Ficha técnica

Ubicación: Ciudad de México

Año: 2014

Estado: Construido

Dimensión: 560 ㎡

Diseño: DF Arquitectos

Equipo de Trabajo: Alonso de la Fuente, Claudia Ban, Enrique Rendón

Iluminación: LAMPE

#CPIHQ

Últimas Noticias

Acabados cálidos y materiales aparentes: Cova 07 por DF Arquitectos

Un espacio que revaloriza las zonas y fomenta la actividad económica de los barrios, viviendo hacia los espacios interiores.

Cova07 Primer Lugar en vivienda Plurifamiliar Premio Firenze EntreMuros

Descubre cuáles son las obras ganadoras de los primeros lugares del Premio Firenze Entremuros, en las nueve categorías de arquitectura y diseño que lo conforman.

Cápsula Crest - Alonso de la Fuente

¿Alguna vez has buscado el consejo o recomendación de un profesional? ¡Alonso de la Fuente nos comparte su mensaje!

Archello - Cova07

I seek to intervene in a neighborhood in Mexico City that has survived time and where as a user you identify through its stories, with a contemporary proposal with total respect for space.

Congreso Virtual Arquitectura y Diseño

Charla con Alonso de la Fuente, presentada por Radio Arquitectura. Conducen Ricardo Noriegga y Fabián del Valle.

Architect Sense - Cova07

En este proyecto, el principal problema que los arquitectos deben tratar es integrar la arquitectura en una ciudad diversa. El edificio está ubicado en un bloque histórico, su estilo moderno satisface sus necesidades funcionales y el uso de materiales refleja el gran respeto por el espacio.

Contacto

Déjanos tu información y nos pondremos en contacto de inmediato.