Edificio Tecnológico

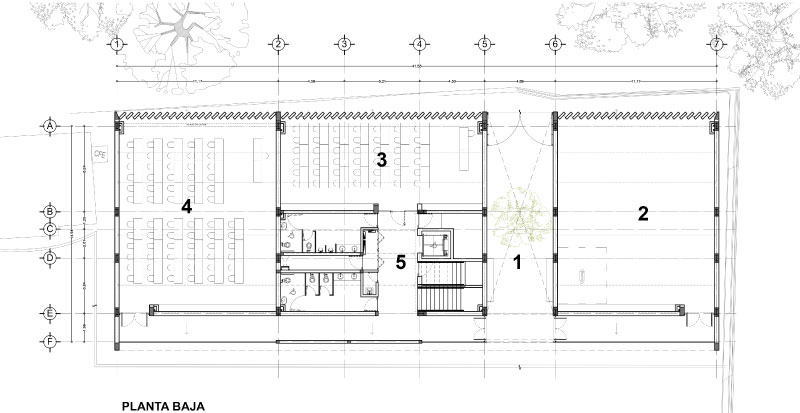
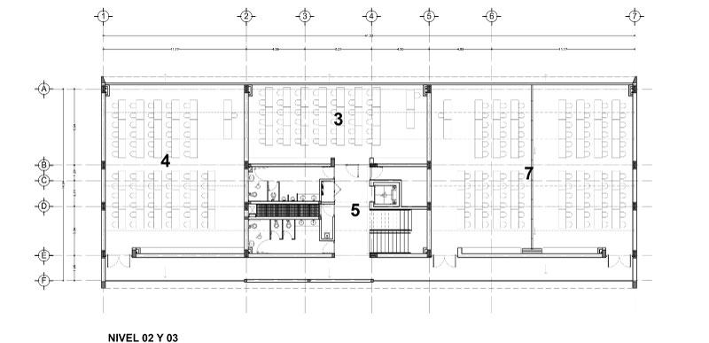
Un edificio tecnológico para la Facultad de Contaduría y Administración de la UNAM, alojado en 4 niveles, con 12 aulas distintas para su programa y capacidad.

Protegiendo la fachada sur con una celosía que parte del concepto de los códigos binarios, que le da movimiento en el interior conforme avanza el día y el asoleamiento refleja códigos en el interior.

La fachada interior, de tabique verde botella. representando los colores de la Facultad. La ventilación cruzada es fundamental. Más de 700 equipos de cómputo, con tecnología de punta en las aulas. Sin duda este edificio se ha vuelto ya un punto referente de tecnología en el campus universitario.

Ficha técnica

Ubicación: Ciudad de México

Año: 2017

Estado: Construido

Dimensión: 2460 ㎡

Diseño: DF Arquitectos

Equipo de Trabajo: Alonso de la Fuente, Mario Climent, Claudia Ban, Isaac García

Celosía: DUCO Lab

Construcción: Diección General de Obras

#LCCIU

Relación de espacios

1. Hall de Acceso

2. Aula Móvil

3. Laboratorio tipo A

4. Laboratorio tipo B

5. Servicios/Circulaciones

6. Laboratorio tipo C

7. Aulas Interactivas

Últimas Noticias

Acabados cálidos y materiales aparentes: Cova 07 por DF Arquitectos

Un espacio que revaloriza las zonas y fomenta la actividad económica de los barrios, viviendo hacia los espacios interiores.

Cova07 Primer Lugar en vivienda Plurifamiliar Premio Firenze EntreMuros

Descubre cuáles son las obras ganadoras de los primeros lugares del Premio Firenze Entremuros, en las nueve categorías de arquitectura y diseño que lo conforman.

Cápsula Crest - Alonso de la Fuente

¿Alguna vez has buscado el consejo o recomendación de un profesional? ¡Alonso de la Fuente nos comparte su mensaje!

Archello - Cova07

I seek to intervene in a neighborhood in Mexico City that has survived time and where as a user you identify through its stories, with a contemporary proposal with total respect for space.

Congreso Virtual Arquitectura y Diseño

Charla con Alonso de la Fuente, presentada por Radio Arquitectura. Conducen Ricardo Noriegga y Fabián del Valle.

Architect Sense - Cova07

En este proyecto, el principal problema que los arquitectos deben tratar es integrar la arquitectura en una ciudad diversa. El edificio está ubicado en un bloque histórico, su estilo moderno satisface sus necesidades funcionales y el uso de materiales refleja el gran respeto por el espacio.

Contacto

Déjanos tu información y nos pondremos en contacto de inmediato.